RESIDENTIAL DEVELOPMENT ERF FOR SALE IN OCEAN VIEW, SWAKOPMUND, NAMIBIA

N$7,644,000
Property Details

Approved Plans Included – Ready for Immediate Development!

Situated close to Swakopmund’s expanding landscape and salt pans, this spacious ERF offers an excellent investment opportunity for developers and investors alike. With a zoning density of 1:100, the approved plans allow 18 modern residential units to be developed across two storeys.

Development Highlights:

  • Erf Size: 3,247 m2
  • Zoning: Residential, 1:100 density
  • Approved Plans: 18 Units (double-storey)
  • 3 Distinct Unit Designs to suit a variety of lifestyles

Unit Types:

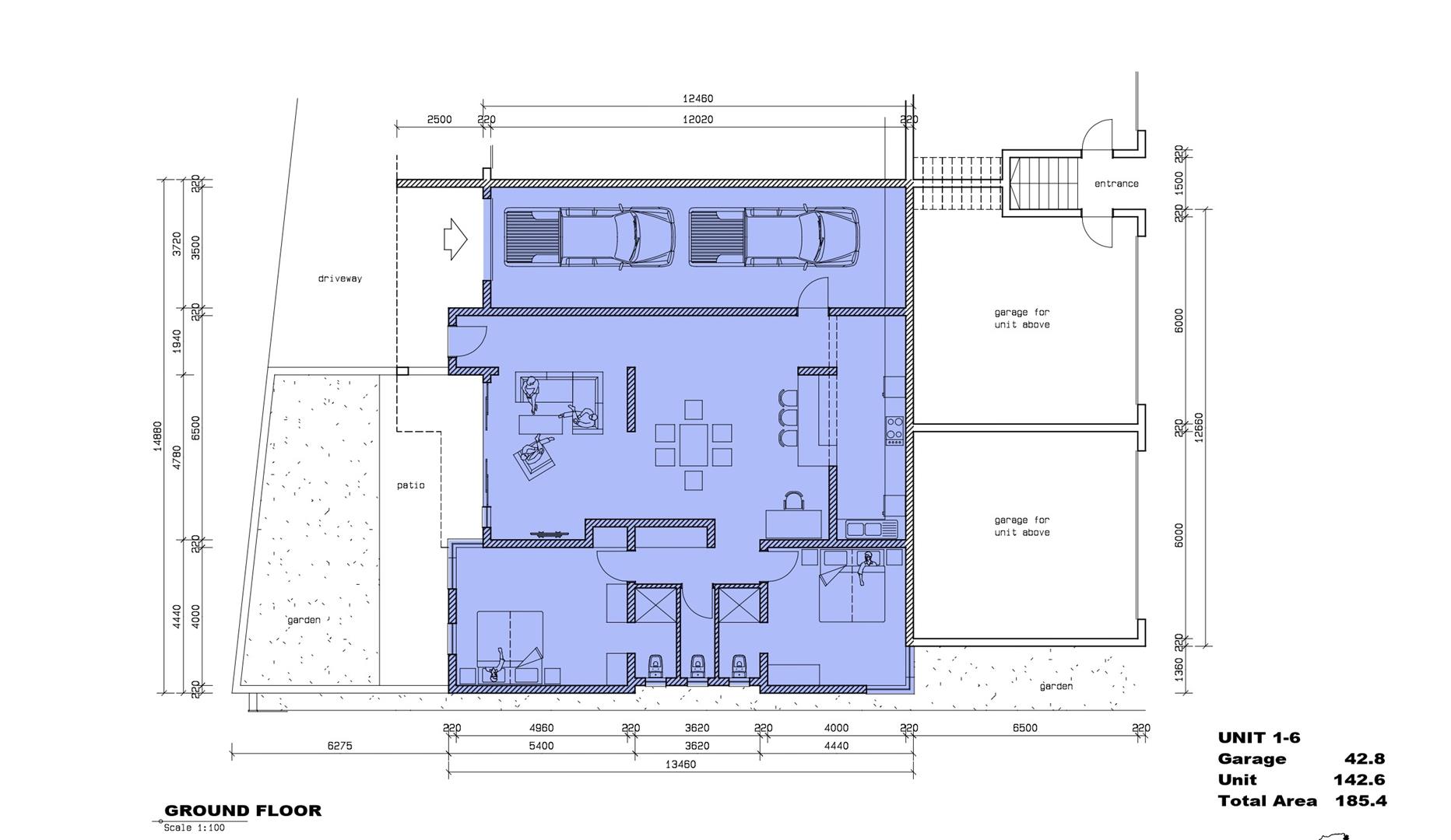
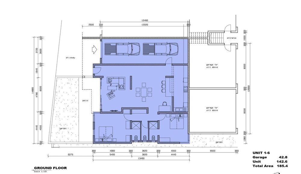
Unit Type 1 – Single Storey (185.4 m2)

  • Open-plan kitchen, lounge & dining area
  • 2 En-suite bedrooms
  • Guest WC
  • Tandem garage
  • Private garden and patio

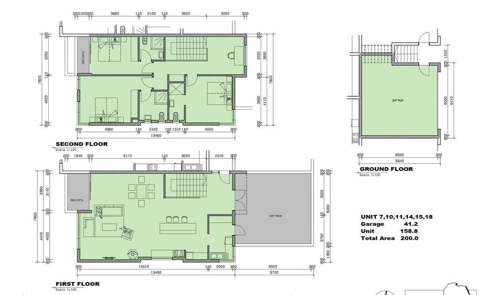
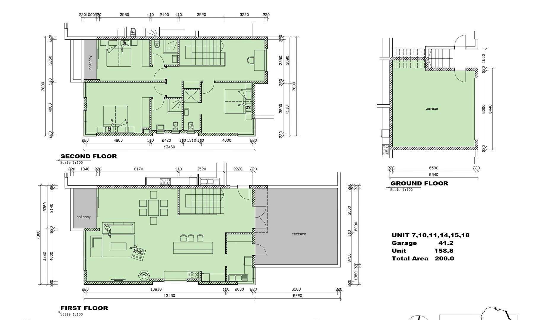
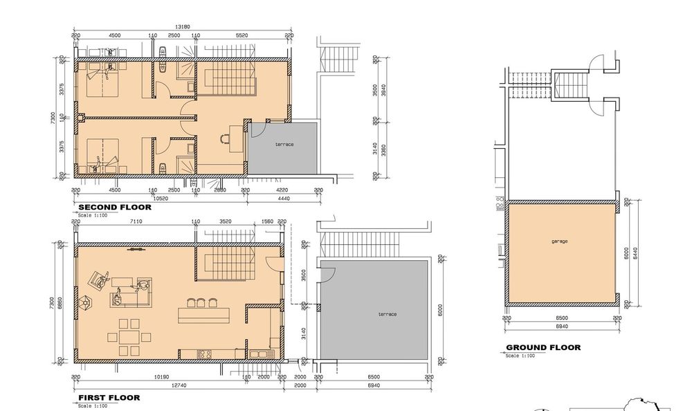
Unit Type 2 – Double Storey (200 m2)

  • Open-plan kitchen, lounge & dining area
  • Scullery/laundry room
  • 3 En-suite bedrooms
  • Double garage
  • 2 Balconies & 1 terrace

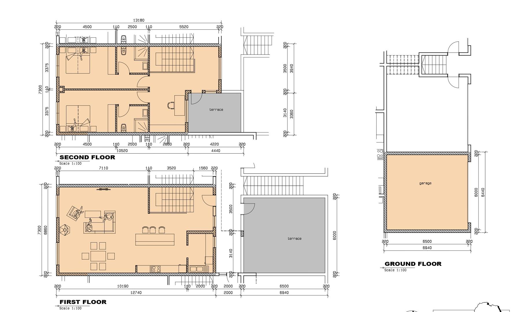
Unit Type 3 – Double Storey

  • Open-plan kitchen, lounge & dining area
  • Scullery/laundry room
  • 2 En-suite bedrooms
  • Double garage
  • 2 terraces
  • Approx. 190m2
Property Features
Property Type
Vacant Land Residential
Land Size
3,247m²
Location
Make an enquiry
Interested in this property? Please fill in your details below, and we will contact you as soon as possible.
By clicking on "submit" you agree to our privacy policy.
Property Alerts
Receive email alerts for properties matching your criteria.